Warner Commercial
Redefining the Commercial Real Estate Experience
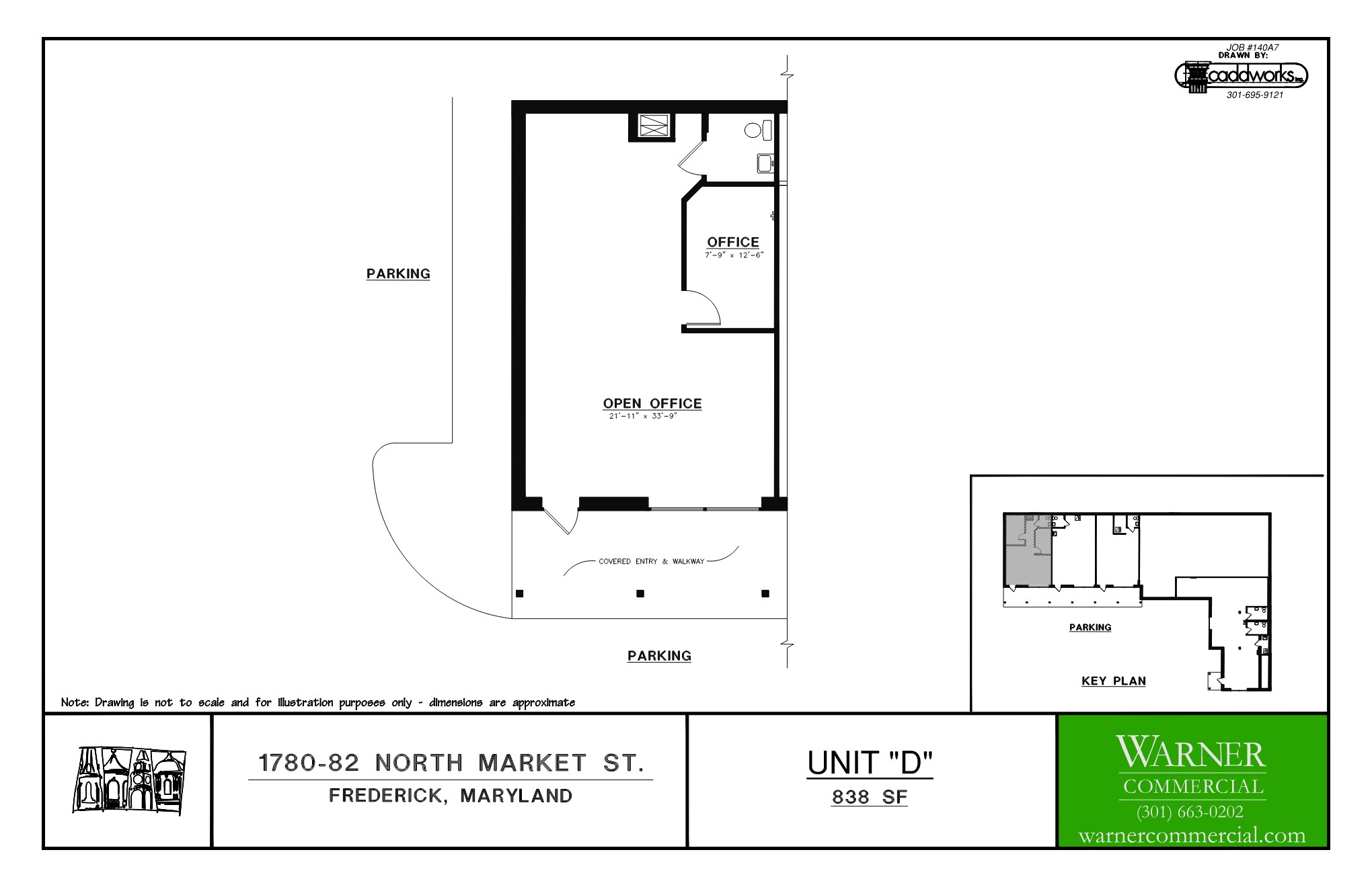
Small office space with parking - ready to go!